REQUEST A TOUR If you would like to see this home without being there in person, select the "Virtual Tour" option and your agent will contact you to discuss available opportunities.
In-PersonVirtual Tour

$ 250,000
Est. payment /mo
Active
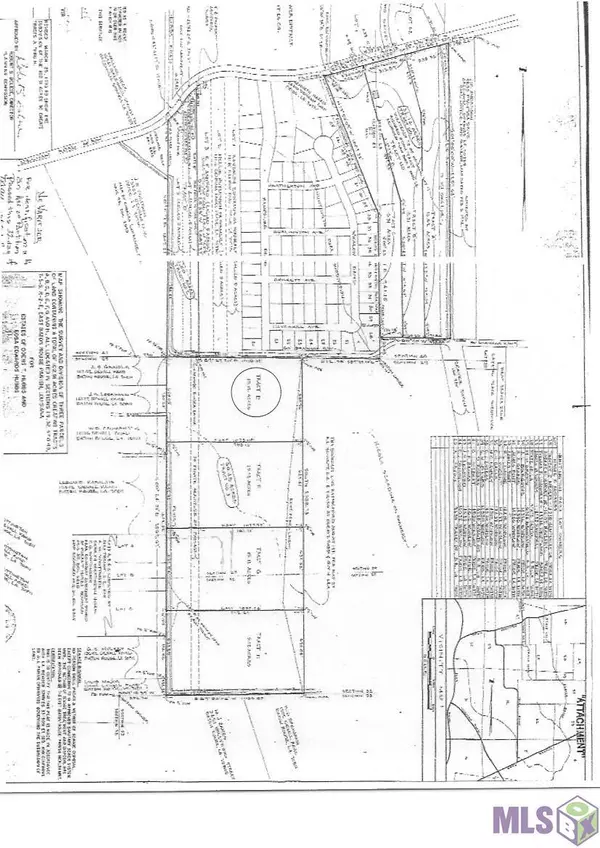
14062 Denham Rd Central, LA 70818
15.12 Acres Lot
UPDATED:
Key Details
Property Type Vacant Land
Sub Type Other
Listing Status Active
Purchase Type For Sale
Subdivision Rural Tract (No Subd)
MLS Listing ID 2022005706
Lot Size 15.120 Acres
Property Sub-Type Other
Property Description
This 15.12 acre tract is in Flood Zone X. Access is down gravel road to south side of Huntington Park Subd. Owner/Agent
Location
State LA
County East Baton Rouge
Direction Joor Rd. North to Denham Rd., continue to Huntington Park Subd. Tract E located at end of Hampshire Dr.
Exterior
Utilities Available None, Water Available
Private Pool false
Building
Lot Description Additional Land Lot
Schools
Elementary Schools Central Community
Middle Schools Central Community
High Schools Central Community
Others
Acceptable Financing Cash, Conventional
Listing Terms Cash, Conventional
Special Listing Condition Owner/Agent
Listed by United Properties of Louisiana

GET MORE INFORMATION




